

















Ja meklējat mājokli Mārupē, kur apvienota pārdomāta arhitektūra, tehnoloģiska efektivitāte un ģimenei piemērota vide – šis īpašums ir vērts apskatīt klātienē.
Par īpašumu
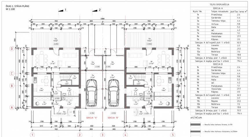
Šī ir kvalitatīvi būvēta dvīņu mājas daļa ar plašu, iežogotu teritoriju un pilnvērtīgu iekšējo plānojumu divos stāvos.
• Kopējā platība – 172 m²
• Dzīvojamā platība – 119,8 m²
• Zemes gabals – 760 m² katrai sekcijai
• Griestu augstums – 2,70 m
Māja ir gaiša, ar lieliem logiem un funkcionāli sakārtotām telpām.
Telpu izkārtojums
Pirmais stāvs veidots ikdienas dzīvei – atvērta tipa viesistaba ar izeju uz terasi, virtuves zona, vannasistaba ar dušu, tehniskā telpa un garderobe.
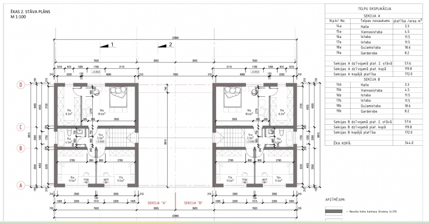
Otrais stāvs – trīs atsevišķas guļamistabas, no kurām viena aprīkota ar walk-in garderobi, kā arī vannasistaba ar vannu.
No augšstāva logiem paveras skats uz dīķi un zaļo apkārtni.
Konstrukcija un inženiertehniskie risinājumi
• Zviedrijā ražota koka karkasa konstrukcija
• A klases energoefektivitāte
• Gaisa siltumsūknis (Midea)
• Siltās grīdas visā mājā
• Rekuperācijas sistēma Norwian 250
• Jumts sagatavots saules paneļu uzstādīšanai
Apdare – kvalitatīva un neitrāla, lai jaunie īpašnieki varētu pielāgot interjeru savam stilam.
Virtuves iekārta nav iekļauta cenā – iespēja realizēt individuālu dizaina risinājumu.
Teritorija un atrašanās vieta
Iežogots pagalms ar automātiskajiem vārtiem.
Privātumu nodrošina dzīvžogs.
Iela – bez caurbraukšanas satiksmes.
Mārupes centrā pieejama visa nepieciešamā infrastruktūra: skolas, bērnudārzi, sporta centri, sabiedriskais transports un pakalpojumi.
Īpašums piemērots ģimenei, kas novērtē energoefektivitāti, mierīgu vidi un pārdomātu plānojumu.